Old Fire Station - Restaurant + Bar

Commercial Renovation Concept | 4,800 SqFt

Mount Vernon, Iowa

The Old Fire Station project in Mount Vernon, Iowa, is a conceptual adaptive‑reuse design that transforms a long‑vacant mid‑century firehouse into an upscale restaurant and bar. Positioned in a lively downtown near Cornell College, the building offered strong historic character but the community lacked a refined dining destination. The concept reimagines the firehouse as a sophisticated yet welcoming culinary venue that elevates the local hospitality scene while honoring the structure’s heritage.

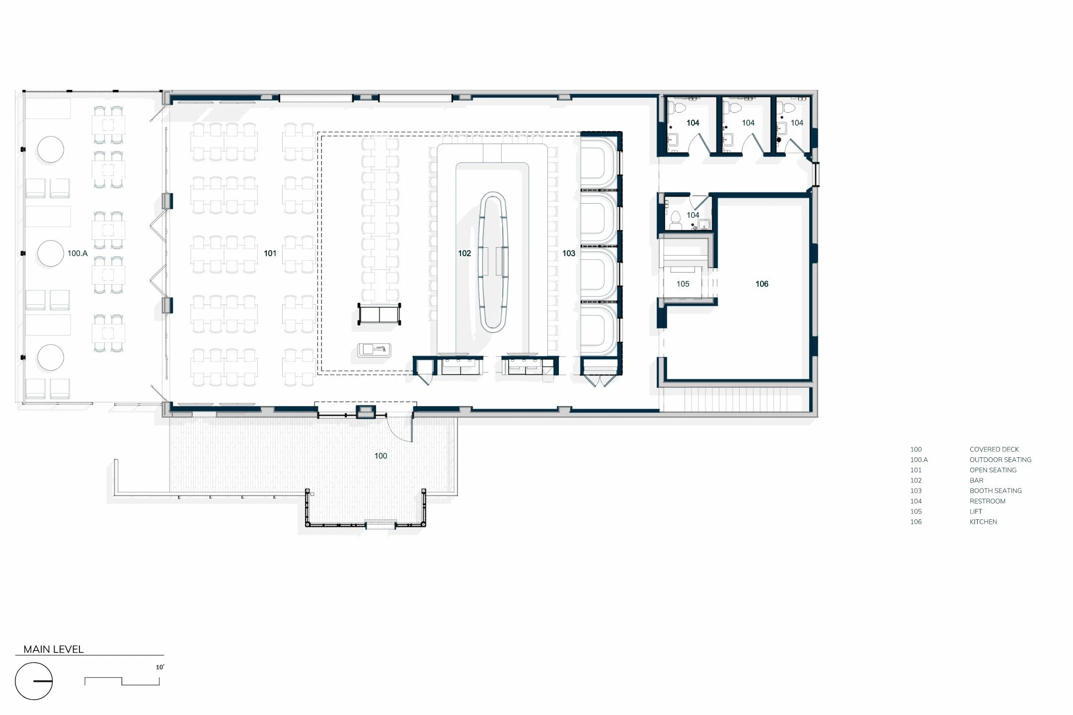
The design preserves the building’s original form while introducing new architectural elements, including a reoriented entry anchored by a vertical fire‑tower feature clad in Shou Sugi Ban–inspired siding—a subtle nod to both the firehouse’s history and local agrarian architecture. Inside, a layered spatial plan creates varied guest experiences: a Bavarian‑style dining hall, a central social bar, intimate booths, and an efficiently organized back‑of‑house zone.

Materiality plays a key role, blending raw, industrial textures with refined details to balance authenticity and contemporary warmth. Exposed structural elements, steel accents, and rich wood finishes reinforce the building’s story while supporting its new identity as a destination restaurant.

For the client and community, the concept provides a compelling vision for transforming an unused civic building into a vibrant cultural anchor. It bridges past and future, offering a fresh culinary and social experience that enhances downtown life, strengthens community identity, and positions the Old Fire Station as a meaningful cornerstone of Mount Vernon’s continued revitalization.

The Team

Architect of Record: Form Function Studio

Consulting Architect: STILL Architecture + Design

Interior Design: Form Function Studio

Previous
Previous

Jordan Creek Church - Concept 01